























The Greek island of Tinos, part of the Cycladic archipelago, is known for its well-preserved cultural heritage and natural landscapes. Historically an island of marble sculptors, it offers a mix of rugged mountains, terraced hills and tranquil beaches, with traditional villages that showcase classic Cycladic architecture — whitewashed buildings, stone-paved lanes and decorated dovecotes. Tinos has a history shaped by different cultures, including Venetian, Byzantine and Ottoman influences, which are reflected in its architecture and traditions. Unlike many other Greek islands, Tinos has so far resisted mass tourism, maintaining a quieter and more authentic atmosphere, and its countryside is still sparsely developed.
Not far from the small village of Kardiani, on a dramatic hillside overlooking the Aegean Sea, Local Local has designed a new summer residence inspired by the rich heritage and natural beauty of Tinos. The four-bedroom house, which is currently under construction and overlooks the neighbouring island of Syros to the south-west, is a choreography of indoor and outdoor spaces designed with the pleasures of Mediterranean outdoor living in mind.
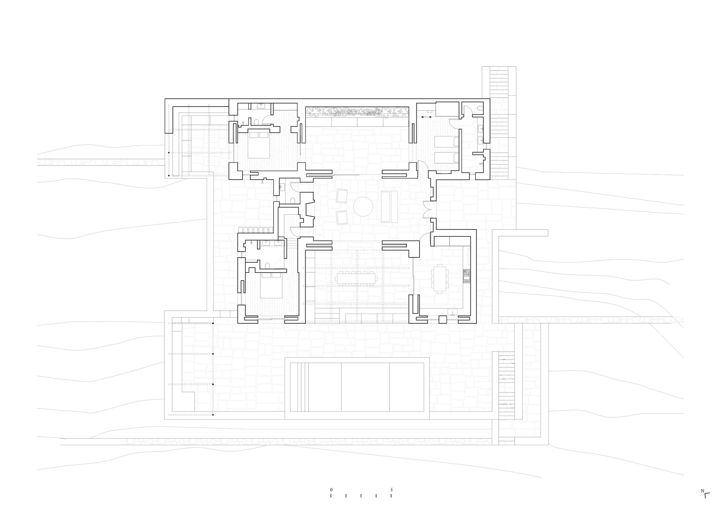
The symmetrical floor plan is reminiscent of a mediaeval castle, with the living room and dining room in the centre, surrounded by three bedrooms and the kitchen at the four corners; the empty spaces between these four ‘bastions’ are transformed into semi-private terraces, where indoor life can spill out in the warmer months. Large openings along the central axis create a cinematic frame for the seascape, bringing it deep into the house and into a walled courtyard, sheltered from the persistent Aegean winds. An additional bedroom is located on the lowest level, with independent access from the garden.
Outside, a pool terrace with two pergolas provides the ideal setting for alfresco entertaining, relaxation and socialising. Local stone is used for the exterior, celebrating the island’s stonemasonry heritage, and is embellished with traditional patterns, stone frames for openings and carved marble ornamentation. The handcrafted latticework is also a tribute to local craftsmanship, echoing the patterns of traditional doors and windows found in the quiet villages of the island.
Carefully embedded in the terraced Cycladic hillside and generously opened to the land and the sea, this house in Kardiani seems to grow out of the land on which it is built. Τhe careful choice of materials and details gives the overall design a contemporary character, while at the same time incorporating local traditions and architectural elements.
Design team: Sofia Xanthakou, Vasilina Sofaditi, Nikolaos Sampaziotis, Joana Gomes
Text: Kiriakos Spirou
37°35’58.34”N 25°4’57.67”E
Avdos
Tinos, Greece
residential
2023